Future & Current Developments

INMAN HOTEL

The Inman Hotel – Historic Renovation & Adaptive Reuse

17 E University Ave,
Champaign, IL 61820

Description:

Originally constructed in 1915, The Inman Hotel has long stood as a historic landmark in downtown Champaign. After decades of vacancy and unsuccessful redevelopment attempts, Omni Development—partnering with local developer Royse & Brinkmeyer—acquired the property in 2022 with the goal of restoring its legacy and revitalizing the surrounding area.

Today, The Inman is a thriving mixed-use asset, featuring 60 residential units above activated ground-floor commercial space. The final phase of the renovation was completed with the opening of Farren’s, a full-service restaurant that has become a sought after downtown destination.

While the primary renovation is complete, additional enhancements or tenant activations may be introduced as part of ongoing efforts to enrich the property and its community impact.

MTD BUS TERMINAL / STATION LOFTS

Station Lofts at the Illinois Terminal – Transit-Oriented Mixed-Use Concept

118 S. Walnut St
Champaign, IL 61820

Description:

The MTD Bus Terminal Expansion is a transit-oriented mixed-use project designed to strengthen downtown Champaign’s role as a regional mobility hub. Dennis Witte continues his partnership with Collin Carlier and Mike Royse, integrating expanded bus operations, structured parking, and residential housing between the historic Inman Hotel and the existing Illinois Terminal, supporting long-term downtown revitalization.

All project concepts are preliminary and subject to change or withdrawal pending financing, approvals, and market conditions.

ICE ARENA

Downtown Champaign Ice Arena – Community Sports & Recreation Concept

210 S Walnut and 210 S Market Street
Champaign, IL 61820

Description:

This proposed three-sheet ice arena would transform underutilized land south of the Inman Hotel and Illinois Terminal into a regional sports and recreation destination. Led by Royce-Witte Downtown, the project is designed to complement ongoing transit and mixed-use investments while expanding opportunities for youth sports, community programming, and downtown activity.

All project concepts are preliminary and subject to change or withdrawal pending financing, approvals, and market conditions.

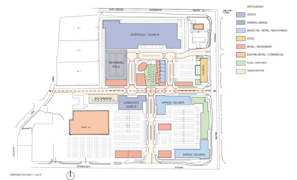
COUNTRY FAIR SHOPPING CENTER

Country Fair Redevelopment – Mixed-Use Master Plan Concept

229 S Mattis Ave
Champaign, IL 61821

Description:

Omni Development, in collaboration with local partners, is reimagining the 36-acre Country Fair Shopping Center into a dynamic mixed-use destination. The long-term vision includes a blend of retail, residential apartments, hotel accommodations, and youth-focused recreational facilities, supported by improved transit access and public gathering spaces.

This redevelopment seeks to reinvest in a long-standing commercial site and deliver lasting community and economic impact for west Champaign.

All project concepts are preliminary and subject to change or withdrawal pending financing, approvals, and market conditions.

JOLIET & FLORIDA

Joliet & Florida Residential – Neighborhood Housing Concept

NE Corner of S. Joliet Street and E. Florida Ave.
Aurora, CO 80012

Description:

Omni Development is exploring the creation of a new residential community at the intersection of Joliet Street and Florida Avenue in Aurora, Colorado. The conceptual plan includes a mix of apartment units and townhomes, designed to complement the surrounding neighborhood and support continued growth in the area.

All project concepts are preliminary and subject to change or withdrawal pending financing, approvals, and market conditions.